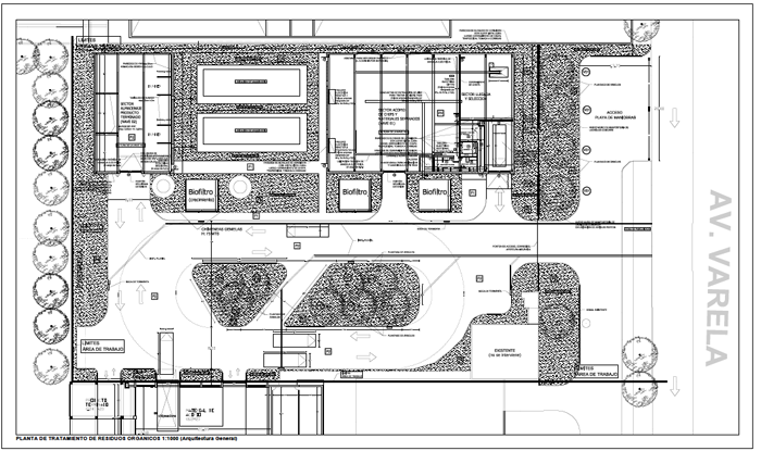
La Ciudad comenzó a construir una planta que tratará 10 toneladas de residuos orgánicos por día, para convertirlos en compost. Este nuevo centro funcionará en el predio de la calle Varela 2563, ubicada en el barrio de Villa Soldati, a partir de mediados del año próximo. El tratamiento convertirá los residuos orgánicos en compost a través de la fermentación aeróbica. Se trata de un desarrollo natural que ocurre de forma espontánea en la naturaleza.

Foto: MAyEP.
Tras un proceso licitatorio, la construcción de la planta fue adjudicada a la empresa CUNUMI por 18 millones de pesos. La compañía debe garantizar una correcta operación y la obtención un producto terminado de calidad, que pueda ser utilizado en los espacios verdes de la ciudad.
El equipo principal de la planta deberá constar de uno o más compostadores cerrados con rotación interna y funcionamiento automatizado de movimiento de material. A su vez, deberá incluir un programa y un contrato de mantenimiento por dos años.
El proceso se realizará en una planta cerrada, lo que reduce las emisiones sonoras y visuales. A su vez, tendrán lugar los controles de emisiones pertinentes para que no haya pérdida de lixiviados. El aire del proceso previo a ser emitido a la atmósfera será tratado mediante biofiltros para reducir las emisiones contaminantes y los malos olores, mediante un sistema de distribución y purificación del aire.

Foto: MAyEP.
Los residuos que se tratarán en la planta provendrán de recolecciones diferenciadas de polos gastronómico, parques, clubes equinos y zoológicos. Para esto, que ya está operativo en algunas zonas de la ciudad, se realizan concientizaciones a los comercios que fomenten una correcta separación. Por el momento, y a hasta que la planta comience a funcionar, los residuos orgánicos recolectados de manera diferenciada son dirigidos directamente a la planta MBT (planta de tratamiento mecánico biológico) donde reciben un tratamiento de bioestabilización.

Otras plantas de tratamiento en la Ciudad
Dentro del predio de Varela funcionan actualmente otras plantas de tratamiento con las que, en conjunto, se formará un gran Centro de Reciclado. Entre ellas se encuentran la de tratamiento de residuos áridos -que opera desde febrero del 2013 y hace unos meses alcanzó la etapa definitiva de construcción-, una planta para tratar restos de poda y forestales, otra para tratar botellas PET y un Centro Educativo, que se construirá con el fin de aprovechar todas las tecnologías que se combinan en el lugar y fomentar la conciencia ambiental.
Las obras se terminarán entre diciembre de este año y en mayo de 2015. A su vez, dentro del predio ya funcionan dos centros verdes en los que trabajan cooperativas de recuperadores urbanos en la clasificación y acopio del material reciclable que recolectan en parte de la ciudad.
La primera planta que comenzó a funcionar en la Ciudad fue la planta de Tratamiento Mecánico Biológico- conocida como planta MBT por su siglas en inglés- que fue inaugurada en enero del 2013 y se encuentra en proceso de ampliación. El tratamiento de los residuos es la medida más exitosa y que mayormente influyó en la reducción de residuos que entierra la Ciudad en los rellenos sanitarios.

Foto: Vista a la planta de reciclaje de PET. Sofía Butler / MAyEP.